ELBİSTAN BELEDİYE BAŞKANLIĞI İmar ve Şehircilik Müdürlüğü ( Dağdere )
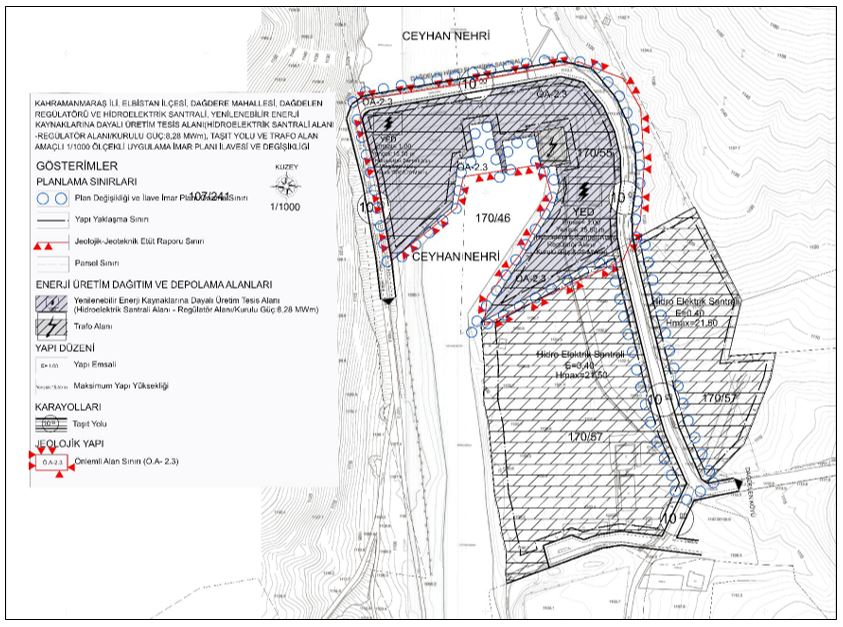
İlçemiz Dağdere Mahallesi 170 ada 46, 55, ve 57 parsellere ilişkin 1/1000 ölçekli uygulama imar planı değişikliği teklifi Kahramanmaraş Büyükşehir Belediye Meclisinin 25.12.2025 tarih ve 2025/12-12- 12.36 sayılı meclis kararı ile onaylanmıştır. Söz konusu plan değişikliğinin bir ay süre ile belediyemiz internet sitesinde askıya çıkartılmıştır.

Hızlı Menü
Bilgi Edinme









